Opis nieruchomości
Bezpośrednio od dewelopera, brak prowizji oraz podatku PCC.
Deweloperskie bliźniaki, ogród, taras, garaż Wrocław / obrzeża Bielan Wrocławskich.
Budynki po odbiorze.
Bestate Nieruchomości Wrocław oferuje do sprzedaży dom w zabudowie bliźniaczej, o powierzchni użytkowej 162,85 m.kw, usytuowany na obrzeżach miasta.
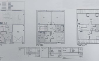
W skład domu wchodzi:
- parter: salon z aneksem kuchennym o powierzchni 29,75 m.kw, spiżarka o pow. 1,50 m.kw, wc o pow. 1,80 m.kw, korytarz o pow. 8,75 m.kw, pomieszczenie techniczne o pow. 2,60 oraz garaż o pow. 16,70 m.kw
- piętro: 2 pokoje o pow. 14,70 m.kw oraz 14,55 m.kw, sypialnia o pow. 11,90 m. kw, dwie łazienki o pow. 6,20 m.kw oraz 5, 20 m.kw, garderoba o pow.4,90 m.kw oraz hol o powierzchni 4,70 m.kw.
- poddasze: pokój o pow. 18,20 m.kw oraz 11,20 m.kw, pralnia o pow. 5,15 m.kw oraz hol o pow. 5,05 m.kw
Ogród o powierzchni 91,72 m.kw
Dodatkowe udogodnienia:
- rolety aluminiowe sterowane elektrycznie na parterze i I piętrze
- ogrzewanie podłogowe na wszystkich kondygnacjach
- pompa ciepła
- instalacja elektryczna z osprzętem ramkowym
- wyprowadzenie instalacji pod panele fotowoltaiczne
- brama garażowa z napędem elektrycznym
Media: woda, kanalizacja, prąd, internet
Cena: 1 250 000 zł
Zapewniamy kompleksową obsługę, najlepsze kredyty hipoteczne, bezpieczną transakcję. Jesteśmy z Tobą na każdym etapie zakupu, od prezentacji do przekazania kluczy. Stan prawny uregulowany, dokumenty dotyczące w/w oferty do wglądu.
Kontakt:
Monika Zaremba
BESTATE Nieruchomości Wrocław
tel: 735-244-098
e-mail: mzaremba@bestate.com.pl
Nr licencji osoby odpowiedzialnej zawodowo: 22004
www.bestate.com.pl/wroclaw
Nota prawna
Opis oferty zawarty na stronie internetowej sporządzany jest na podstawie oględzin nieruchomości oraz informacji uzyskanych od właściciela, może podlegać aktualizacji i nie stanowi oferty określonej w art. 66 i następnych K.C.