Myślenice (gw), Zawada

Dom na sprzedaż

Opis nieruchomości

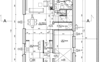
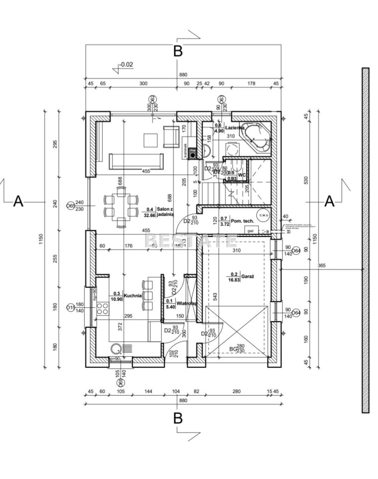
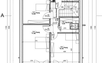
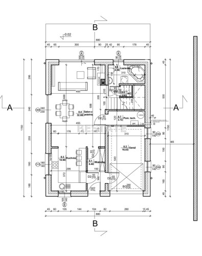
Nowy dom wolnostojący | 134,5 m² | Zawada k. Myślenic | Działka 7 ar | Stan surowy otwarty

Na sprzedaż dom jednorodzinny wolnostojący w stanie surowym otwartym, o powierzchni 134,5 m², usytuowany na widokowej działce o powierzchni 7 arów, w malowniczej miejscowości Zawada pod Myślenicami.

 Dom:

  • powierzchnia użytkowa: 134,5 m²
  • rok budowy: 2024
  • technologia: murowany z betonu komórkowego Termobet
  • dach: nowoczesna, płaska dachówka Nelskamp Planum (Niemcy)
  • układ pomieszczeń według projektu jednorodzinnego z dużym potencjałem aranżacyjnym

Lokalizacja:

  • Zawada, gm. Myślenice
  • 4 km do centrum Myślenic
  • 3 km do Zakopianki
  • 20 km do Krakowa
    Idealne miejsce do życia — spokojna okolica z szybkim dojazdem do miasta.

 Działka:

  • powierzchnia: 700 m² (7 arów)
  • ukształtowana, wyskarpowana, częściowo wyplantowana
  • wykonane mury oporowe z prefabrykatów
  • dojazd: utwardzona droga wewnętrzna (udział w drodze)

Media na działce:

  • prąd
  • woda
  • gaz
  • kanalizacja

Zapraszamy na prezentację!
Z nami przejdziesz przez cały proces zakupu – od obejrzenia nieruchomości po przekazanie kluczy. Przygotujemy dla Ciebie komplet dokumentów, a nasz doradca finansowy pomoże znaleźć najkorzystniejszy kredyt hipoteczny.

 

Nota prawna

Opis oferty zawarty na stronie internetowej sporządzany jest na podstawie oględzin nieruchomości oraz informacji uzyskanych od właściciela, może podlegać aktualizacji i nie stanowi oferty określonej w art. 66 i następnych K.C.

Szczegóły oferty

Symbol oferty BESK-DS-15007
Powierzchnia 134,50 m²
Powierzchnia działki 700 m²
Liczba pokoi 4
Kształt działki prostokąt
Stan budynku do wykończenia
Rok budowy 2024
Gaz na działce
Woda na działce
Prąd na działce
Kanalizacja na działce

Kalkulator kredytowy

PLN
%
Wysokość raty

Kalkulator kosztów

PLN
PLN
PLN
PLN
PLN
PLN
%
PLN
Podatek od czynności cywilno-prawnych
Taksa notarialna (opłata notarialna)
VAT od taksy notarialnej (opłaty notarialnej)
Wniosek do WKW
VAT od wniosku do WKW
Prowizja agencji nieruchomości
VAT od prowizji agencji nieruchomości
Wypisy aktu notarialnego - około
RAZEM (cena + opłaty)

Napisz do nas

Proszę wypełnić to pole
Proszę wypełnić to pole
Proszę wypełnić to pole
Proszę wypełnić to pole
Trwa wysyłanie...

Ta strona wykorzystuje pliki cookies w celach statystycznych oraz w celu dostosowania naszych serwisów do indywidualnych potrzeb klientów. Zmiany ustawień dotyczących plików cookie można dokonać w dowolnej chwili modyfikując ustawienia przeglądarki. Korzystanie z tej strony bez zmian ustawień dotyczących cookies oznacza, że będą one zapisane w pamięci urządzenia.

rozumiem