Trzebnica

Dom na sprzedaż

Opis nieruchomości

Kupujący zwolniony jest z prowizji oraz podatku PCC 2%

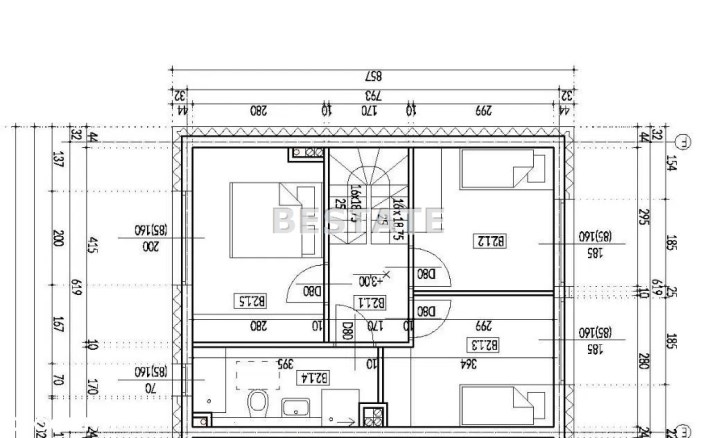
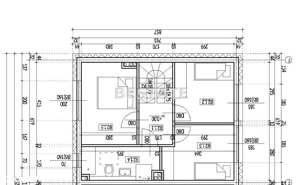
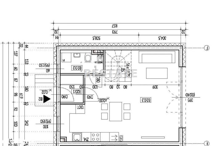
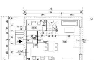
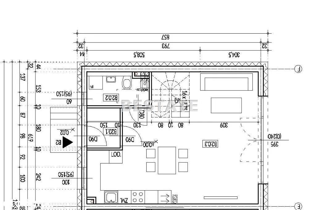
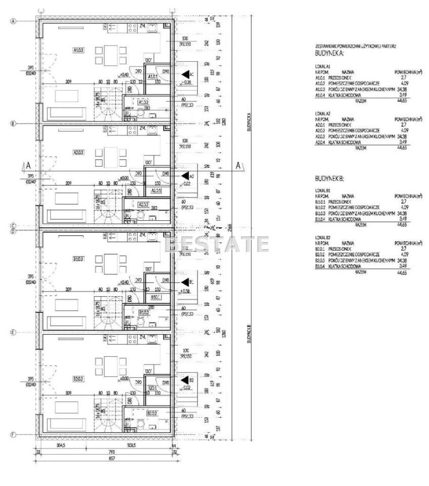
Sprzedam dom w zabudowie szeregowej, dwupiętrowy, o powierzchni  użytkowej 84,58 m. kw. usytuowany w zielonej, cichej okolicy domów jednorodzinnych i pól w odległości ok. 1 km od centrum Trzebnicy. Budynek to cztery takie domy. Dom jest w sprzedawany w stanie deweloperskim. Parter domu składa się z dużego salonu z jadalnią i kuchnią o pow. 34,38 m.kw., z którego jest wyście na taras i ogród, oraz łazienki o pow. 4,09 m.kw. i przedsionka o pow. 2,70 m.kw. Na piętrze domu znajdują się trzy sypialnie o pow. 11,42, 9,43 i 9,12 oraz łazienka o pow. 6,40 m.kw. Do domu przynależy ogródek o pow. 71 m.kw. oraz miejsce postojowe. Doprowadzone są wszystkie media; prąd, gaz miejski, woda, kanalizacja. W domu montowane są, energooszczędne okna, piec gazowy dwufunkcyjny, instalacja TV. Ocieplenie budynku styropianem o grubości 15 cm, ocieplone jest również poddasze, pianą PUR. Dodatkowo strych jako trzecia kondygnacja.

Dom położony jest w zaciszu pól i domów jednorodzinnych, z dala od głównej drogi, jednak odległość do centrum Trzebnicy, a co za tym idzie dworca PKP, restauracji, sklepów, szkół czy przedszkoli, to ok. 700-1000 m. Dojazd do Wrocławia ok. 20 minut. Szybki wyjazd na S5.


Cena: 715 000 zł

Zapewniamy kompleksową obsługę, najlepsze kredyty hipoteczne, bezpieczną transakcję. Jesteśmy z Tobą na każdym etapie zakupu, od prezentacji do przekazania kluczy.

Stan prawny uregulowany, dokumenty dotyczące w/w oferty do wglądu.
Kontakt:
Monika Berdowska
BESTATE Wrocław 
tel. kom: +48 883 647 169
e-mail: mberdowska@bestate.com.pl
nr licencji osoby odpowiedzialnej zawodowo: 22004
www.bestate.com.pl

Nota prawna

Opis oferty zawarty na stronie internetowej sporządzany jest na podstawie oględzin nieruchomości oraz informacji uzyskanych od właściciela, może podlegać aktualizacji i nie stanowi oferty określonej w art. 66 i następnych K.C.

Szczegóły oferty

Symbol oferty BESW-DS-13557
Powierzchnia 84,58 m²
Powierzchnia użytkowa 84,58 m²
Powierzchnia działki 71 m²
Liczba pokoi 4
Rodzaj domu segment
Liczba pięter w budynku 2
Garaż miejsce postojowe
Okna PCV
Instalacje ELEKTRYCZNA, WODNA, GAZOWA
Stan budynku do wykończenia
Rok budowy 2023
Gaz jest
Woda tak - miejska
Dojazd droga utwardzona
Otoczenie zabudowa jednorodzinna
Ogrzewanie pompa ciepła
Odległość do komunikacji publicznej [m] 1 000 m
Odl. do sklepu [m] 700 m
Odl. do szkoły [m] 1 000 m
Odl. do przedszkola [m] 1 000 m
Tarasy taras
Prąd jest
Kanalizacja tak

Pomieszczenia

Powierzchnia pokoi 34,38+11,42+9,43+9,12 m2
Rodzaj kuchni aneks kuchenny - połączony z jadalnią
Liczba łazienek 2
Powierzchnia łazienki 6,4+4,09 m2

Lokalizacja

Kalkulator kredytowy

PLN
%
Wysokość raty

Kalkulator kosztów

PLN
PLN
PLN
PLN
PLN
PLN
%
PLN
Podatek od czynności cywilno-prawnych
Taksa notarialna (opłata notarialna)
VAT od taksy notarialnej (opłaty notarialnej)
Wniosek do WKW
VAT od wniosku do WKW
Prowizja agencji nieruchomości
VAT od prowizji agencji nieruchomości
Wypisy aktu notarialnego - około
RAZEM (cena + opłaty)

Podobne oferty

dom na sprzedaż - Trzebnica, Skarszyn

dom na sprzedaż

Trzebnica, Skarszyn
4 pokoje 119,96 m2 7 077,36 zł/m2

Napisz do nas

Proszę wypełnić to pole
Proszę wypełnić to pole
Proszę wypełnić to pole
Proszę wypełnić to pole
Trwa wysyłanie...

Ta strona wykorzystuje pliki cookies w celach statystycznych oraz w celu dostosowania naszych serwisów do indywidualnych potrzeb klientów. Zmiany ustawień dotyczących plików cookie można dokonać w dowolnej chwili modyfikując ustawienia przeglądarki. Korzystanie z tej strony bez zmian ustawień dotyczących cookies oznacza, że będą one zapisane w pamięci urządzenia.

rozumiem