Opis nieruchomości
Wolnostojący dom w stanie deweloperskim w spokojnej dzielnicy miasta
BESTATE Nieruchomości Pabianice oferuje do sprzedaży nowy dom jednorodzinny o powierzchni użytkowej 144,43 m.kw usytuowany na obrzeżach Pabianic. Dom w stanie deweloperskim, wybudowany z pustaka ceramicznego Mega Max, elewacja docieplona styropianem gr. 20 cm wykończona tynkiem, dach z wiązarów, nowoczesny, bezokapowy, docieplony wełną mineralną gr. 25 cm, wykończony dachówką ceramiczną. Działka o powierzchni 833 m.kw ogrodzona ogrodzeniem panelowym z furtką oraz bramą wjazdową. Dom wybudowany według indywidualnego projektu. Okna pcv firmy OKNOPLAST z ekspozycją na wszystkie kierunki świata. Centralne ogrzewanie podłogowe, pompa ciepła. Instalacja przygotowana pod rekuperację (wentylację mechaniczną). Instalacja elektryczna z przygotowanym systemem alarmowym, wyjściami do fotowoltaiki i ładowarki samochodowej w garażu.
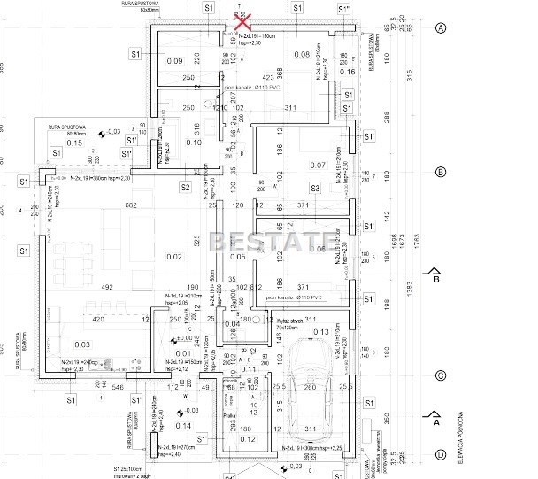
Zestawienie powierzchni budynku:
- hall wejściowy 6,20 m.kw
- salon 36,31 m.kw
- kuchnia 10,92 m.kw
- wc 2,27 m.kw
- komunikacja 8,62 m.kw
- pokój 13,10 m.kw
- pokój 13,10 m.kw
- sypialnia 15,57 m.kw
- garderoba 5,50 m.kw
- łazienka 7,90 m.kw
- hall gospodarczy 2,16 m.kw
- pom. gosp. 5,27 m.kw
- garaż 17,51 m.kw
Media: energia elektryczna, woda miejska, szambo, ogrzewanie c.o. własne - pompa ciepła - podłogowe
Dom usytuowany w spokojnej lokalizacji zapewniającej komfort przyjemnego mieszkania.
Przewidywany termin zakończenia budowy: kwiecień 2025r.
Cena orientacyjna: 900 000 zł - dokładna wartość domu określona zostanie 12/2024
Kupujący nie płaci podatku PCC
Zapewniamy kompleksową obsługę, najlepsze kredyty hipoteczne, bezpieczną transakcję. Jesteśmy z Tobą na każdym etapie zakupu, od prezentacji do przekazania kluczy.
Stan prawny uregulowany, dokumenty dotyczące w/w oferty do wglądu.
Kontakt:
Barbara Kolasa
BESTATE Nieruchomości
tel: 692 400 228
e-mail: bkolasa@bestate.com.pl
Nr licencji osoby odpowiedzialnej zawodowo: 22004
www.bestate.com.pl/pabianice
Nota prawna
Opis oferty zawarty na stronie internetowej sporządzany jest na podstawie oględzin nieruchomości oraz informacji uzyskanych od właściciela, może podlegać aktualizacji i nie stanowi oferty określonej w art. 66 i następnych K.C.