Wrocław, Stare Miasto

Lokal na sprzedaż

Opis nieruchomości

Lokal z witryną na parterze, pod działalność , blisko Rynku.

Bezpośrednio od dewelopera, brak prowizji oraz podatku 2% PCC.
Lokal po odbiorze technicznym.
Posiadamy ponad 90 inwestycji we Wrocławiu i okolicach, zapytaj o pozostałe.
Bezpłatna pomoc przy kredytowaniu.

Inwestycja w centrum Wrocławia, lokale w stanie deweloperskim. 

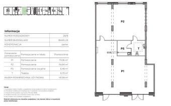
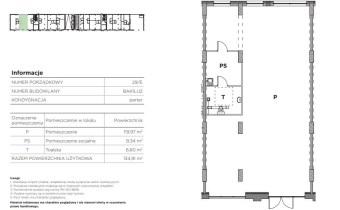
Prezentowany lokal o powierzchni użytkowej 134,91 m.kw. składa się z pomieszczenia głównego o pow. 119,97 m.kw., pokoju socjalnego o pow. 8,34 m.kw. oraz toalety o pow. 6,60 m.kw. Usytuowany jest na parterze oddanego do użytku budynku. Przeszklone witryny zapewniają możliwość umieszczenia reklamy. Garaż podziemne.
Świetna lokalizacja, w sercu miasta, w otoczeniu terenów zielonych i niezbędnej infrastruktury.
Posiadamy w ofercie tej inwestycji lokale na parterze o powierzchni od 134,91 m.kw. do 141,58 m.kw.
Cena za m.kw. od 14 513 zł do 14 514 zł

Cena: 1 958 084 zł + vat

Zadzwoń i umów się na prezentację.
Zapewniamy kompleksową obsługę, najlepsze kredyty hipoteczne, bezpieczną transakcję. Jesteśmy z Tobą na każdym etapie zakupu, od prezentacji do przekazania kluczy. Stan prawny uregulowany, dokumenty dotyczące w/w oferty do wglądu. 

 

Kontakt:

Renner Agnieszka

BESTATE Wrocław

tel: 602 459 354

e-mail: arenner@bestate.com.pl

Nr licencji: 22004

www.bestate.com.pl

Nota prawna

Opis oferty zawarty na stronie internetowej sporządzany jest na podstawie oględzin nieruchomości oraz informacji uzyskanych od właściciela, może podlegać aktualizacji i nie stanowi oferty określonej w art. 66 i następnych K.C.

Szczegóły oferty

Symbol oferty BESW-LS-15079
Powierzchnia 134,91 m²
Powierzchnia użytkowa 134,91 m²
Liczba pokoi 1
Piętro parter
Rodzaj budynku blok
Liczba pięter w budynku 8
Stan lokalu deweloperski
Okna PCV
Instalacje ELEKTRYCZNA
Rok budowy 2019
Rodzaj lokalu jednopoziomowy
Przeznaczenie lokalu handlowo-usługowy
Woda ciepła - miejska
Winda tak
Usytuowanie jednostronne
Witryna wystawowa jest
Wejście od ulicy

Lokalizacja

Kalkulator kredytowy

PLN
%
Wysokość raty

Kalkulator kosztów

PLN
PLN
PLN
PLN
PLN
PLN
%
PLN
Podatek od czynności cywilno-prawnych
Taksa notarialna (opłata notarialna)
VAT od taksy notarialnej (opłaty notarialnej)
Wniosek do WKW
VAT od wniosku do WKW
Prowizja agencji nieruchomości
VAT od prowizji agencji nieruchomości
Wypisy aktu notarialnego - około
RAZEM (cena + opłaty)

Napisz do nas

Proszę wypełnić to pole
Proszę wypełnić to pole
Proszę wypełnić to pole
Proszę wypełnić to pole
Trwa wysyłanie...

Ta strona wykorzystuje pliki cookies w celach statystycznych oraz w celu dostosowania naszych serwisów do indywidualnych potrzeb klientów. Zmiany ustawień dotyczących plików cookie można dokonać w dowolnej chwili modyfikując ustawienia przeglądarki. Korzystanie z tej strony bez zmian ustawień dotyczących cookies oznacza, że będą one zapisane w pamięci urządzenia.

rozumiem